打破格局,用圓穿透整個家

用淺色的木頭搭配白色營造出的氛圍,簡單又舒適
常常也是很多人喜歡的感覺之一 你也是嗎? 那就一起來看吧

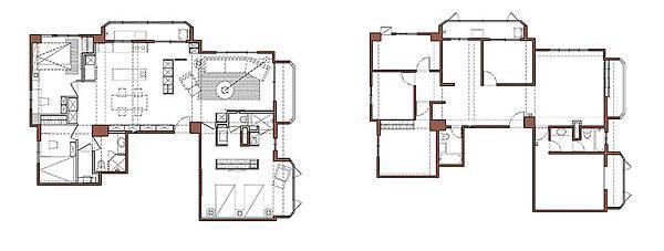
哇!!其實不用細看 就會覺得,明明一樣的大的房子,怎麼看起來右邊小好多呢
本來一個家被切割成好多小房間,浪費了很多空間在廊道的地方,公共空間也因此縮小且區塊很模糊
設計後的平面圖,擴大了公共空間以及主臥的空間
減少房間及隔間數,讓整個家好像開闊了一樣

打掉了中間的房間,將公共區域擴大
可能會想說 原本的那麼多的廊道跟房間呢?
廊道部分,就像我們張德良設計師常說的,好的廊道是多功能的空間
將廊道一起設計在整個空間裡,讓你感覺不出來哪裡是"一個廊道",而是整體的空間

那房間呢?
透過事前的居家調查,發現到屋主的小孩幾乎都在國外,很少回來
平常家裡只有兩個人在生活,其實不需要那麼多的房間,大多時間都是在客餐廳
這些調查的結果和事前的討論,設計了符合屋主需求的量身打造空間

整個空間運用木牆的圓,穿透了整個家
看似隔間看似設計,也是整個家的主軸
營造出了另個角落,模糊了空間的界限


開放式的廚房設計,和整體空間相互呼應
加上好的採光,呈現明亮而舒適的氛圍


看似白色的牆面,其實都是收納的櫃子
更不用說演拓一定會有的,萬用餐水櫃
讓餐桌廚房保持整齊不凌亂的大功成,門一關,3秒即可見客


主臥和整體空間呼應,白色為主簡潔大方,呈現游如飯店般的感受
只看到乾淨的牆面跟床,那生活機能呢?


電視牆後也就是更衣室,更是乾濕分離的廁所及浴室
結合了三個強大的生活機能在牆後,一樣是似有若無的隔間
也讓這一個"廊道"不只是廊道,充滿了多功能的生活及收納機能

打破原有的格局規劃,設計出符合屋主生活習慣的空間
簡單也不簡單的設計,舒適的家也有著足夠的收納
讓家 可以都是這樣簡單、大方、舒適
你是不是也跟我一樣喜歡這樣的設計呢?
想看更多演拓的作品嗎? 快上<演拓空間Facebook>


留言
張貼留言