簡潔愜意裏,讓日光變成格調

說在前頭
“喬治·莫·蘭迪:我相信,越是簡單、平凡無奇的物,就越能從多餘的釋放中解放。”在住宅設計裡,我們也相信,在喧囂的都市也可以在安靜平和裡依然擁有時尚腔調,詮釋的是現代年輕人希冀的生活。
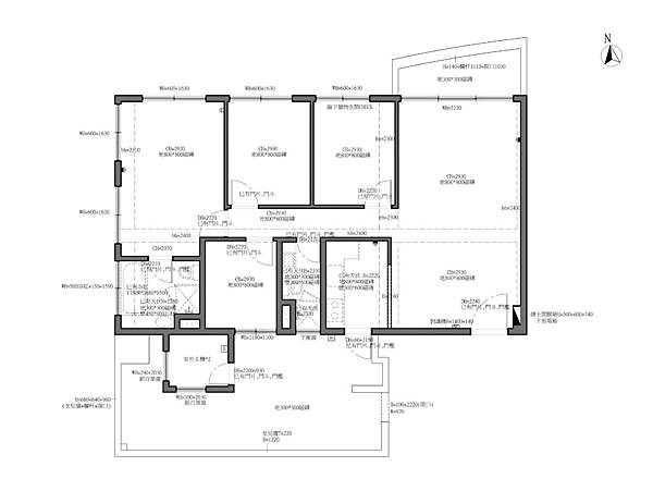
平面圖


平面策略:
- 利用門位內側做一個滿牆櫃,讓收納依牆而放卻不影響視覺空間感。
 - 中島作爲餐桌的連接點,增加機能同時讓空間有適度的界線感。
 - 利用移動式屏風變成簡裝中的精緻之筆。
 - 將主臥房門前置及暗門處理,讓狹長過道縮短。
 - 從衣帽間和主浴內退空間做過道牆櫃,讓空間好用不浪費。
 
客餐廳

|陽光格調現代風|
質樸木質地板延伸至牆面,異材質結合石紋,在溫和的陽光與燈光渲染之下,空間顯得洗練而敞亮。

|層次豐富,簡約又豐富|
借著電視牆櫃的造型分割讓整個橫廳在開放的同時也有隱喻性的空間劃分;並且延續牆櫃的層次感定制了與別不同的斜頂天花,正好可以化解客餐廳之間天花梁體的壓迫。

|自然與時尚疊加的氣息滿溢|
以灰與白作爲空間底色,搭配木色的愜意,加以黃色的點綴,鏤刻出自然舒適的清爽明朗感。

|妙改背景墻,通幽成亮點|
在沙發背景牆上不拘一格開了一個“窗”,讓客廳和多功能房聯通起來,房間的嫩綠牆身無意間成爲了“曲徑通幽處”的生機盎然;而一側的綫性幾何造型又凸顯出簡約時尚品味。

|流光的獨特風景|
簡約而不簡單,落地窗戶設置風琴簾,讓室外的綠意陽光變成最美的裝飾,中空的遮擋也具有很好的私密性;更為有考究的是,在潔淨的風琴簾之上,增加細微序列感肌理的移動屏風,讓空間的質感更能打動人。
餐廳

|實用與顔值極緻結合|
精緻別具美感的“一分鐘見客櫃”內藏收納細節的把握,拉門的設計也可以最大可能保證可以美觀展露人前。而島臺延伸成多功能操作面,也能夠在多人用餐的時候提供足夠的使用空間;金屬燈具與異形壓克力餐椅更好地提升了空間的美感。
主臥


|雋永的現代,優雅的舒適|
竪條格柵飾面板營造主臥的床頭背景,結合金屬小吊燈,打造都市中的安靜之感。灰調和柔和彩度的布藝,編織這生活中的舒適,構成休息場域的歲月靜好。
浴室

|極緻利用,大氣機能|
天花、牆面、洗手臺選用淺色系材質,讓小空間不經意擴大,而通過合理的佈局,在有限的空間裡實現洗浴、鹽洗、泡澡、如廁的多場景使用。
最後分享不將就的生活細節

演拓SOP系統標準化,務必要求施工過程每一步正確與到位,例如施工前的保護工作都細緻而有規範。

在施工過程中,用甲醛量表測試建材在施工過程中它的一些建材對家居環境的影響,並及時用科學的措施保障空間的環保、居住的健康。








收納設計在居家空間中占了極大的比例,但不是只要有櫃子就行了,櫃子的內部的規劃才是是否收納好用的關鍵。一般人都有打開收納櫃的抽屜,卻找不到東西的困擾,要不就是找個小物品要翻箱倒櫃才可以找到。
我們會按照前期的家居調查中對屋主物品的瞭解與通用的生活考究,每一個收納櫃都分類明細,務求物品都有自己契合相符的“家”。


利用空間與傢俱,巧妙增加收納力;儲藏式的傢俱讓外在很簡潔,收納內在強大,還能應對不同的使用狀態。
THE END
繁華都市
觸動人心的
只是簡簡單單
當中
既可嚮往四季自然
也可領略現代時尚
簡單也可以不落俗套,時尚裏的精緻感更在於挖掘生活的細節需求;通過合理細膩的設計,讓生活充滿質感,並不會因爲預算上的更多限制而缺少溫度、缺少格調!
閱讀更多 -
演拓官網 | www.interplay.com.tw
預約設計 | 2766-2589
Facebook | 演拓空間設計
YouTube | 演拓空間室內設計
Instagram | interplaydesign_space


留言
張貼留言